Happy Thursday Everyone!! We’re back this week with an update to our Spring 2015 ORC. In case you missed last week’s post, you can check it out here. It’s very exciting over here at RAD as things are starting to move into high gear! We are determined to give you guys a FANTASTIC transformation!
Last week we shared with you our very ambitious plan of transforming this outdated kitchen by knocking down the wall that divides the kitchen and the dining room, and merging the two rooms.
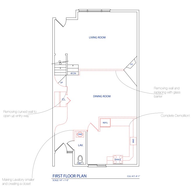
Again, our motto for this project is Dream Big or Go Home, and we are truly living by it! Here’s a quick recap of our big dreams for the space:
And here’s what we’ve dreamed up for the new space!
The new plan makes the space seem larger and brighter, which will be great for our clients as they are downsizing from a bigger home. We’re also happy to be giving them a lot more storage.
Luckily, our clients are absolutely amazing and have complete faith in us and approved the plans! Without missing a beat, we jumped right into demolition!
Demo is definitely one of the more daunting phases of the project, but the great thing about it is that once it’s done, we get to really see the space that we’ll be working on!
We’re super excited that things are finally becoming a reality! And here are some of the things we think will work perfectly in this new space:
We were lucky to find a fabulous vintage lucite table for the dining room, as well as chairs that will look AMAZING once they have been reupholstered.
We’ve also ordered the custom lighting fixture as well as the kitchen cabinets, appliances, and everything we need for our lovely breakfast nook.
Now, of course, we couldn’t live in a dream world forever. Sigh. Reality set in just a little as we had to make a tiny adjustment to the design per our clients’ request. Instead of using marble for the backsplash and countertops, we’re looking into different options since marble is a bit high-maintenance for them. So these are our top 4 contenders, and by next week we need to have a decision!
Even though these 4 stones look similar, and would all be equally great for countertops,we are looking into which will the best one for our clients. When choosing a stone for your countertops, make sure to consider not only the price of the stone, but also how resistant to stains it is, how much maintenance it needs, and how durable it will be.
Be sure to keep up with our progress every Thursday, and also check out some of the other amazing bloggers who are participating in the Spring 2015 One Room Challenge. We’ve checked on the Wednesday Participants and we are excited to see the wonderful projects they’re sharing. Make sure to check on them as well!!

















Love the post!!!! So detailed 🙂
LikeLike
Thanks!
LikeLike
Wow your taking on a big project for 6 weeks! I can’t wait to see your progress!
LikeLike
That Dream Big board is fabulous. I can’t wait to see what you pick for the counter tops and how it all comes together!
LikeLike
Thank you 🙂
LikeLike
Beautiful design. The blue chairs are killer!
LikeLike
Thanks!
LikeLike
I loveee your plans! My fav countertops are the classic white quartzite and calacatta. I think it will look amazing the cabinet colour. Great progress!!
LikeLike
Thanks! And thank you for your input in the countertop decision! 🙂
LikeLike
Amazing design! I’m excited to see what you choose for the countertops!
LikeLike
Thanks! Next week we’ll have reveal which countertop we’re using!
LikeLike
Wow, what a project! My favorite counter top is the Ambrosia White Granite. It’s definitely the least subtle, which is what appeals to me, lol. They are all very beautiful, so you can’t possibly go wrong. I don’t use “obsessed” lightly, but I’m kind of obsessed with the dining set you found. It’s SOOOOO chic and glamorous. The chairs are bonkers! Looking forward to seeing this come together!
LikeLike
Thank you so much for giving us some input on the countertop options! And we still can’t believe our luck with the dining set!
LikeLike